Appartamento in Porta Romana - Toscano Zanuso
Home
Progetti
About
En
It
Vai al contenuto
T
o
s
c
a
n
o
.
Z
a
n
u
s
o
.
architettura
MENU
Home
Progetti
About
En
It
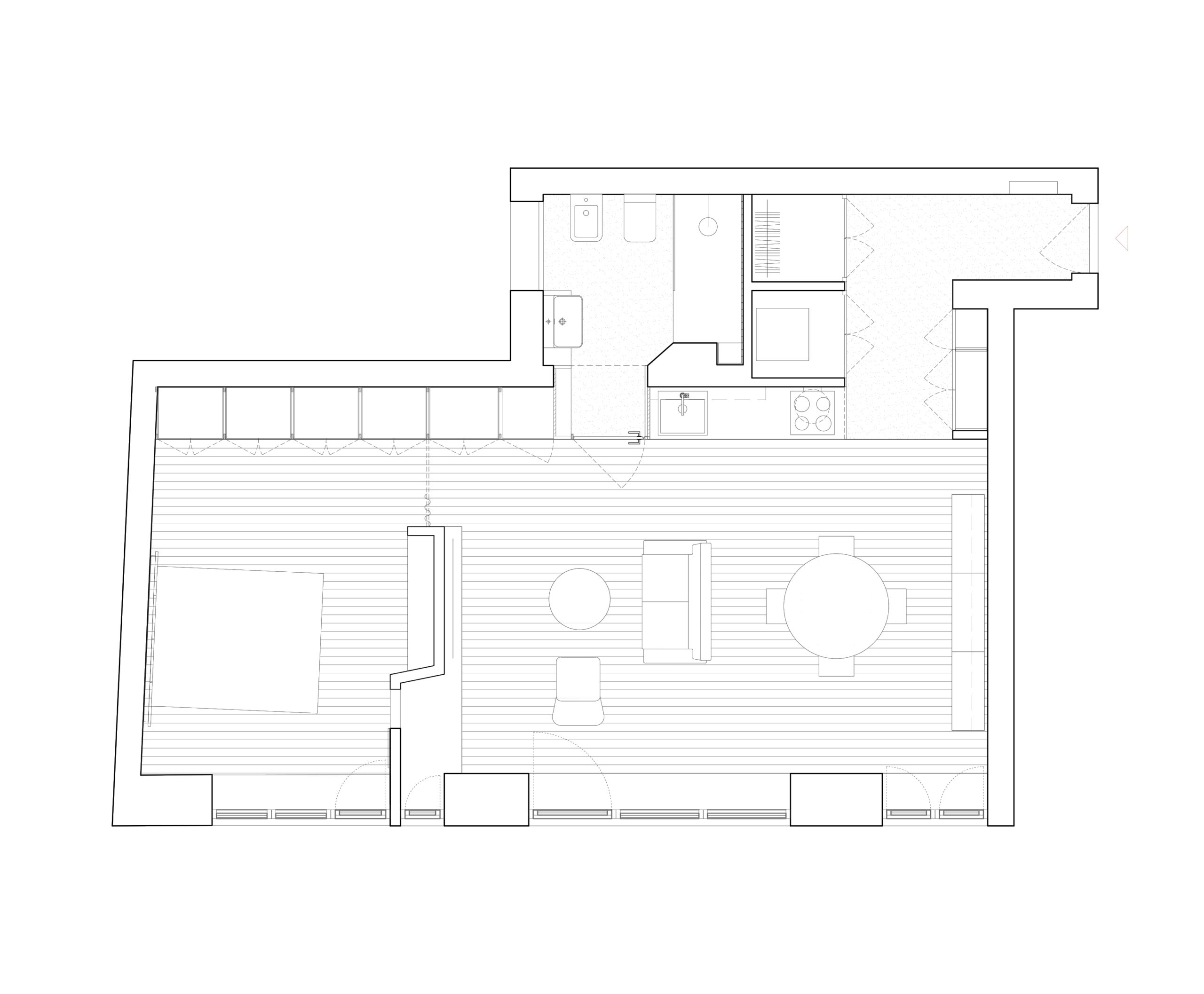
Appartamento in Porta Romana
Milano,Italia
Previous
Next